24
Buckingham Road, London, E11
OIEO £1,600,000
3 bedrooms, 1 bathrooms, 2 receptions
Summary:
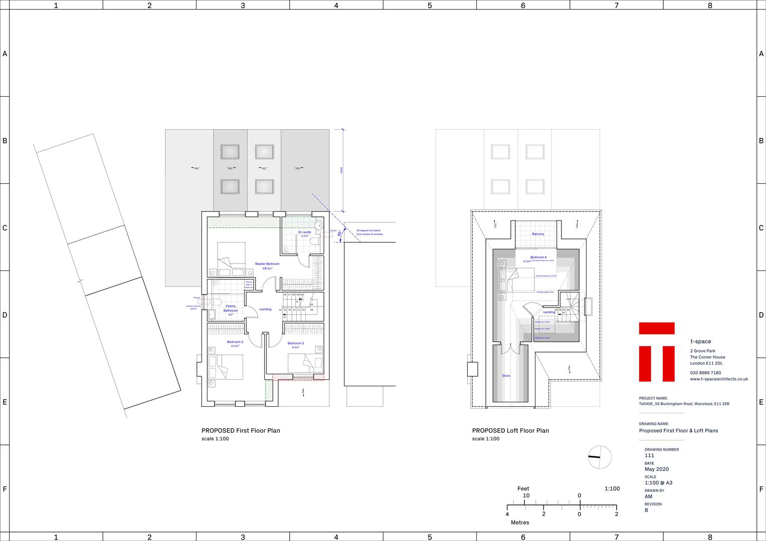
Three bed semi detached house with adjacent land for sale WITH APPROVED PLANNING.Title deeds are already split between the land and house ,ready for the detached house to be built.Nestled on the charming Buckingham Road in Wanstead,on the sought after Counties Estate, this semi detached house offers a wonderful opportunity for both families and investors alike. Spanning an impressive 1,216 square feet, the property boasts a well-thought-out layout that includes two spacious reception rooms, perfect for entertaining guests or enjoying quiet family evenings. The house features three bedrooms. The single bathroom is conveniently located, catering to the needs of the household. Built in 1930, this home retains a sense of character while offering the potential for modernisation and personalisation.One of the standout features of this property is the granted planning permission, making it an excellent prospect for development. Whether you envision expanding the living space or enhancing the outdoor area, the possibilities are abundant. Additionally, the property includes parking for two vehicles, a valuable asset.With its prime location and development potential, this semi detached house on Buckingham Road is a rare find. It presents an exciting opportunity to create a dream home or a lucrative investment in one of Wanstead's vibrant neighbourhoods with just a short walk to the high street and central line underground stations Wanstead station and Snaresbrook station. Don't miss your chance to explore the possibilities this property has to offer.Buying agents contact our office.
Key Features:
- PLOT WITH PLANNING PERMISSION APPROVED- HOUSE AND LARGE LAND SPACE
- THREE BED SEMI DETACHED HOUSE WITH LARGE GARDEN AND LAND
- PLANNING PERMISSION GRANTED FOR A DETACHED 5 BED HOUSE
- GREAT FOR DEVELOPMENT WITH SCHOOLS, TUBES & HIGH STREET A SHORT WALK AWAY
- PEACEFUL RESIDENTIAL STREET
- NEVER BEFORE ON THE MARKET
- CHAIN FREE
- OPEN DAY DETAILS TO FOLLOW FOR REGISTERED BUYERS
- CASH BUYERS ONLY
Full Details:
Reception (5.1 x 4.5 (16'8" x 14'9"))
Dining room (4.6 x 3.4 (15'1" x 11'1"))
Kitchen (3.6 x 3.0 (11'9" x 9'10"))
Garden (38.0 x 34.0 (124'8" x 111'6"))
Bedroom 1 (5.0 x 4.0 (16'4" x 13'1"))
Bedroom 2 (3.4 x 3.3 (11'1" x 10'9"))
Bedroom 3 (3.5 x 2.5 (11'5" x 8'2"))
Viewing & Disclaimer:
Please contact us on 0208 5027667 if you wish to arrange a viewing appointment for this property, or require further information.
Hunt Property Services - IG8 endeavour to maintain accurate depictions of properties in Virtual Tours, Floor Plans and descriptions, however, these are intended only as a guide and purchasers must satisfy themselves by personal inspection.
