41
The Manor, Woodford Green, IG8
£700,000
4 bedrooms, 3 bathrooms, 1 receptions
Summary:
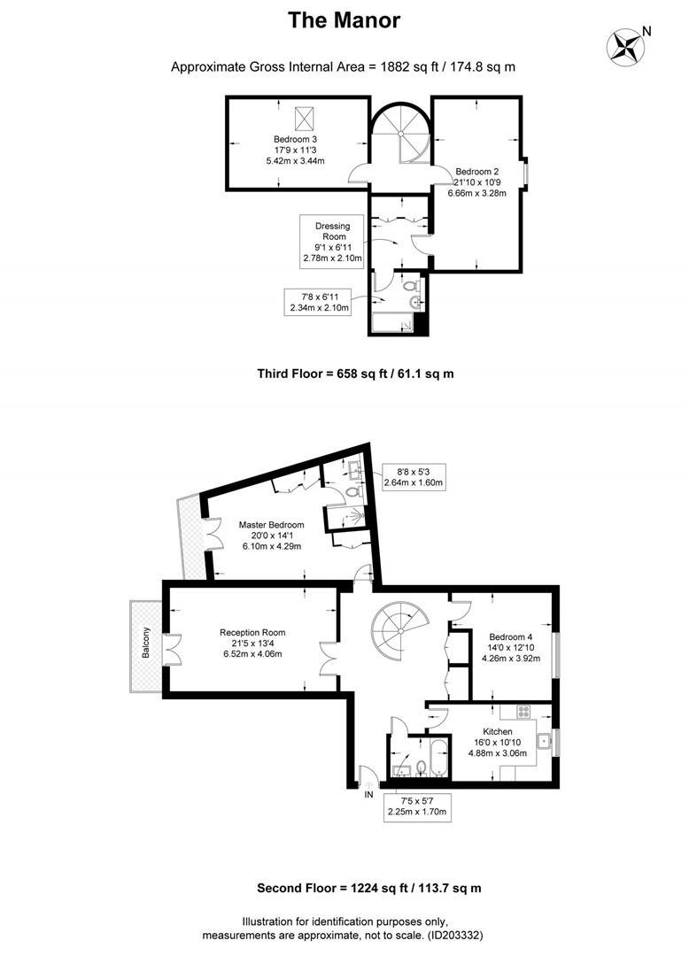
Set within The Manor, the private gated community of Repton Park, Woodford Green, this exquisite penthouse apartment offers a harmonious blend of luxury and comfort. Spanning an impressive 1,882 square feet, the residence boasts four generously sized bedrooms, making it an ideal home for families or those who appreciate ample space.Upon entering, you are greeted by a spacious reception room that serves as the heart of the home, perfect for entertaining guests or enjoying quiet evenings. The apartment features three well-appointed bathrooms, ensuring convenience and privacy for all occupants.In addition to its elegant interiors, this property comes with the added benefit of parking for two vehicles. The surrounding area is known for its beautiful green spaces and excellent local amenities, providing a perfect balance of tranquillity and accessibility.This apartment at The Manor is not just a place to live; it is a lifestyle choice that offers both comfort and sophistication. Benefits include CCTV, 24-hour concierge & security patrol guards and an exclusive Virgin Active spa, gym & café. Pavillion nursery on site.
Key Features:
- Luxury Four bedroom duplex apartment
- Three bathrooms
- Balcony overlooking stunning grounds
- Impressive spiral staircase
- Two allocated parking spaces in underground carpark with lift access.
- Set within the prestigious gated development Repton Park
- 24 hour concierge, night security, 145 acres of mature parkland
- Virgin active spa, gym & swimming pool
- Sole agent
- Chain free
Full Details:
Kitchen (4.88 x 3.06 (16'0" x 10'0"))
Lounge (6.53 x 4.07 (21'5" x 13'4"))
Bedroom 1 (6.10 x 4.30 (20'0" x 14'1"))
Ensuite (2.65 x 1.61 (8'8" x 5'3"))
Bedroom 2 (6.66 x 3.28 (21'10" x 10'9"))
Bedroom 3 (5.42 x 3.44 (17'9" x 11'3"))
Shower room (2.34 x 2.11 (7'8" x 6'11"))
Bedroom 4 (4.27 x 3.92 (14'0" x 12'10"))
Bathroom (2.27 x 1.71 (7'5" x 5'7"))
Dressing room (2.78 x 2.11 (9'1" x 6'11"))
Viewing & Disclaimer:
Please contact us on 0208 5027667 if you wish to arrange a viewing appointment for this property, or require further information.
Energy Performance Certificate
Click here to view the Energy Efficiency Rating and Environmental Impact Rating for this property.
Hunt Property Services - IG8 endeavour to maintain accurate depictions of properties in Virtual Tours, Floor Plans and descriptions, however, these are intended only as a guide and purchasers must satisfy themselves by personal inspection.
