30
The Boulevard, Woodford Green, IG8
SOLD
£1,250,000
5 bedrooms, 4 bathrooms, 2 receptions
Summary:
End of terrace five double bedroom, four bathroom townhouse set within the prestigious development of Repton Park. Top floor benefits three double bedrooms all with ensuite bathrooms.Larger than other townhouses with many more windows to the side creating an abundance of natural light and a private gated garden which has side access, integral garage & driveway.Ground floor has an open plan kitchen dining room to offer with French doors onto a larger than average garden for Repton Park which has a generous side area for storage.Kitchen is newly fitted and contemporary, boasting quartz worktops and double oven all new high end appliances and large breakfast bar for family living. Separate utility room, WC and ground floor lounge.First floor has two double bedrooms and one family bathroom and a fabulous main reception with two sets of French doors with Juliette balcony and a small terrace for dining from the study space.Exceptional-sized townhouse.Set within the private gated development of Repton Park, with 24-hour security patrol guards, CCTV, concierge, and 145 acres of mature parkland. Exclusive Virgin Active Spa gym and health bistro (at an additional cost).Rental opportunity £5000 pcm. Hunt Property - The Repton Park Agent
Key Features:
- End of terrace
- Five double bedrooms
- Four bathrooms & ground floor WC
- Conservatory & Study
- Garage,drive & private parking space
- 24 hour concierge, night security
- 145 acres of mature parkland
- Virgin Active spa,gym & swimming pool
- Sole Agent
- Chain free
Full Details:
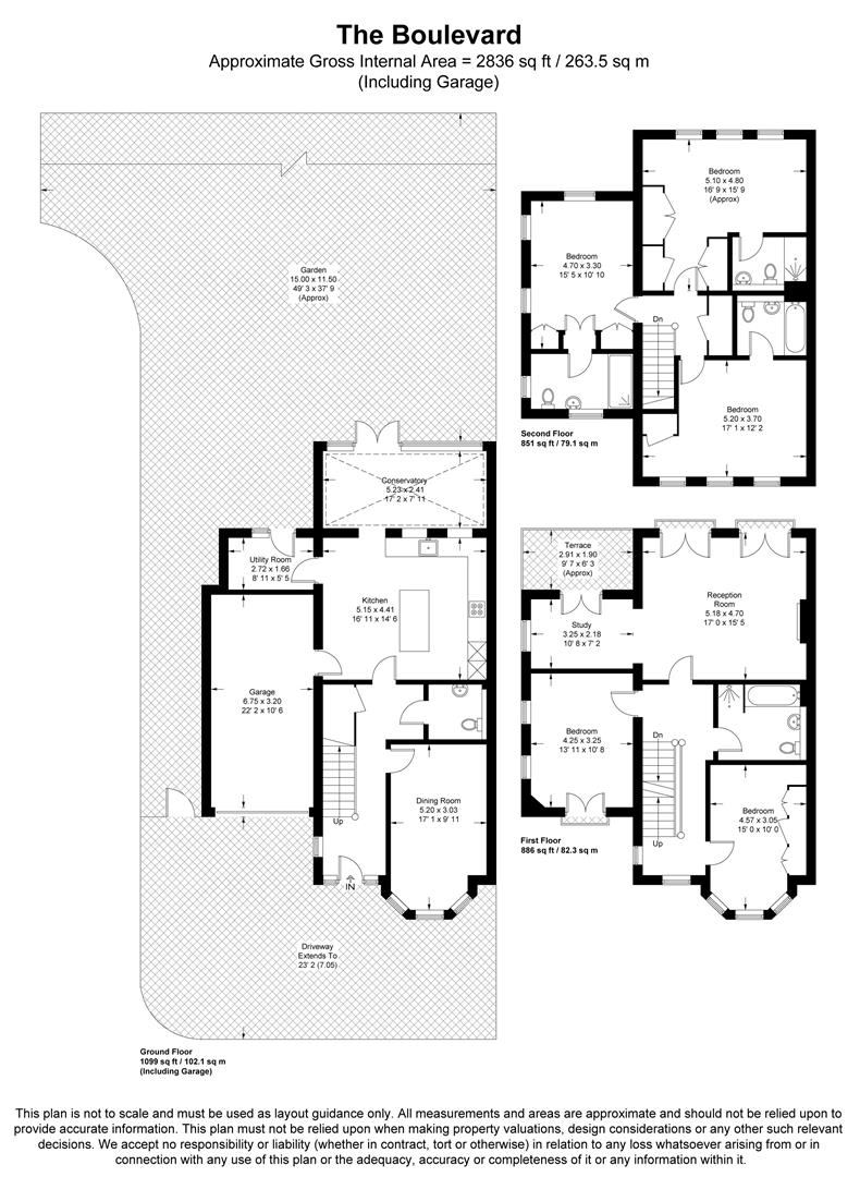
Kitchen (5.16 x 4.42 (16'11" x 14'6"))
Utility room (2.72 x 1.66 (8'11" x 5'5"))
Ground floor lounge (5.21 x 3.03 (17'1" x 9'11"))
Conservatory (5.24 x 2.42 (17'2" x 7'11"))
Garage (6.76 x 3.21 (22'2" x 10'6"))
Garden (15.02 x 11.51 (49'3" x 37'9"))
Reception 1st floor (5.19 x 4.70 (17'0" x 15'5"))
Study (3.26 x 2.19 (10'8" x 7'2"))
Terrace (2.93 x 1.91 (9'7" x 6'3"))
Bedroom (1st floor) (4.58 x 3.05 (15'0" x 10'0"))
Bedroom (1st floor) (4.25 x 3.26 (13'11" x 10'8"))
Bedroom (top floor) (5.21 x 3.71 (17'1" x 12'2"))
Bedroom (top floor) (5.11 x 4.81 (16'9" x 15'9"))
Bedroom (top Floor) (4.70 x 3.31 (15'5" x 10'10"))
Viewing & Disclaimer:
Please contact us on 0208 5027667 if you wish to arrange a viewing appointment for this property, or require further information.
Energy Performance Certificate
Click here to view the Energy Efficiency Rating and Environmental Impact Rating for this property.
Hunt Property Services - IG8 endeavour to maintain accurate depictions of properties in Virtual Tours, Floor Plans and descriptions, however, these are intended only as a guide and purchasers must satisfy themselves by personal inspection.
