28
Regents Drive, Woodford Green, IG8
£1,200,000
4 bedrooms, 3 bathrooms, 1 receptions
Summary:
Stunning four double bedroom family home arranged over three floors, set within the prestigious gated development of Repton Park. This beautifully presented property sits behind electric gates and features a main reception room on the ground floor, with French doors opening onto a private garden and patio, enjoying south-west facing forest views and beautiful sunsets.The spacious principal bedroom benefits from a contemporary en suite, while a charming roof terrace provides additional outdoor space. Further advantages include private parking for two cars, a garage, and access to exceptional on-site amenities including CCTV, a 24-hour concierge service, and the exclusive adults-only Virgin Active spa, gym, and bistro.The property is ideally located for easy access to the A406, A12, A13, M11, and M25, making it perfectly suited to commuters while retaining a peaceful and private settingSole agent, chain free.
Key Features:
- TOWNHOUSE SET OVER THREE FLOORS
- FOUR DOUBLE BEDBROOMS
- THREE CONTEMPORARY BATHROOMS
- LARGE LOUNGE WITH FRENCH DOORS TO PRIVATE GARDEN AND PATIO
- ROOF TERRACE
- PRIVATE PARKING PLUS GARAGE
- SET WITHIN A GATED DEVELOPMENT
- CCTV, 24 HOUR CONCIERGE AND SECURITY PATROL
- 145 ACRES OF MATURE PARKLAND
- VIRGIN ACTIVE GYM, SPA & SWIMMING POOL ON SITE
Full Details:
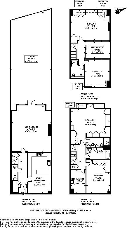
Kitchen/Dining room (6.53 x 3.70 (21'5" x 12'1"))
Reception (7.47 x 6.31 (24'6" x 20'8"))
Bedroom 1 (6.30 x 5.67 (20'8" x 18'7"))
Bedroom 2 (5.31 x 3.76 (17'5" x 12'4"))
Utility room (3.80 x 2.44 (12'5" x 8'0"))
Bedroom 3 (6.27 x 4.91 (20'6" x 16'1"))
Bedroom 4 (4.45 x 3.94 (14'7" x 12'11"))
Roof Terrace (3.85 x 2.73 (12'7" x 8'11"))
Garden (15.16 x 6.40 (49'8" x 20'11"))
Viewing & Disclaimer:
Please contact us on 0208 5027667 if you wish to arrange a viewing appointment for this property, or require further information.
Energy Performance Certificate
Click here to view the Energy Efficiency Rating and Environmental Impact Rating for this property.
Hunt Property Services - IG8 endeavour to maintain accurate depictions of properties in Virtual Tours, Floor Plans and descriptions, however, these are intended only as a guide and purchasers must satisfy themselves by personal inspection.
